Eyüp Sultan Projesi

Toplam 1 blok 6 daireden oluşan ve Polatlı`nın Şehitlik Mahallesi Ulubatlı Hasan Caddesinde yapılan Eyüp Sultan Apartmanı toplam 661 metrekare alana sahiptir.

2015 yılında yapım çalışmaları başlamış, 2016 yılında teslim edilmiş, kullanıma açılmıştır. 3+1 dairelerimiz 155 metrekaredir.

Soldaki proje tanıtım videomuzdan ve alttaki proje fotoğraflarımızdan detaylıca inceleyebilir, daire özellikleri, site / bina özellikleri, kat planı ve 3D tasarım görseline sayfanın alt kısımlarına göz atarak ulaşabilirsiniz.

Otopark Depreme Dayanıklı 7/24 Güvenlik Yeşil Alan Asansör Fiber İnternet Su Deposu

Proje Resimleri Tümünü Gör

ANTRE AYNALIK TEMEL YAPIMI MUTFAK OTURMA ODASI GİRİŞ KAT MUTFAK MASASI ÜST GÖRÜNÜM MUTFAK KABA SIVA YAPIMI

Daire Özellikleri

1. Daireler bodrum katta 123,16 m² brüt alana sahip iki daire, zemin katta 136,43 m² brüt alana sahip 1 daire ve 171,19 m² brüt alana sahip bir daire, birinci katta ise 171,19 m² brüt alana sahip iki daire olmak üzere toplam 6 daire şeklinde yapılmıştır.
2. Her dairede antre, 3 oda, 1 salon, 2 banyo, wc, lavabo, 2 balkon bulunmaktadır.
3. Her dairenin tavanlarında led aydınlatma yapılacak şekilde çift kartonpiyer uygulaması yapılmıştır.
4. Anahtar teslim dairelerde mutfak dolabı, çimston tezgah, vestiyer, normal banyoya klozet, çamaşır makinesi tesisatı, banyo dolabı, duşakabin, yoğuşmalı kombi, tavanlarda dekorasyona göre led ve spot aydınlatmalar yapılmıştır.
5. Her odaya mobilya yerleşim ve hareket alanları dikkate alınarak yeterli sayıda priz konulmuştur.
6. Her odaya, mutfağa TV anten girişi konulmuştur.
7. Ebeveyn banyosuna duş ve lavabo ve klozet konulmuştur.
8. Mutfak dolaplarının kapaklarında belirlenen renkler arasında tercih hakkı verilmiştir.
9. Antrede sensörlü yerden gece aydınlatması yapılmıştır.
10. Parke yapımında parke altlarına 5 mm strafor kullanılmıştır.
11. Her odada ve salonda çift açılımı pencere kanadı kullanılmıştır.

Bina Özellikleri

1. Bina Bayındırlık ve İskân Bakanlığının belirlemiş olduğu ve Polatlı Belediyesi ve Çevre ve Şehircilik Bakanlığının verdiği mimari proje ve cepheye uygun olarak yapıldı.
2. Temel mütemadi temel şeklinde yapıldı.
3. Bina ara katlarında 30 dansite yoğunluğunda strafor kullanıldı.
4. Aynı katta bulunan iki daire arasındaki ortak duvar çift duvar şeklinde ve araya yalıtım malzemesi konularak yapıldı.
5. Dış cephede kaba sıva üzerine 5 cm kalınlığında karbonlu mantolama malzemesi kullanıldı.
6. Binada renkli pimapen kullanıldı.
7. Binaya ait çanak anten takılarak her daireye iki adet kablo çekildi.
8. 6 adet güvenlik kamerası kullanıldı.
9. Yeterli büyüklükte otopark yapıldı.
10. Bina girişi çift giriş yapılarak şifreli kilit kullanıldı.
11. Çatı katına her daireye özel kiler yapıldı.
12. Binaya özel kamelya yapıldı.
13. Bina etrafına gerekli yeşil alan yapıldı.

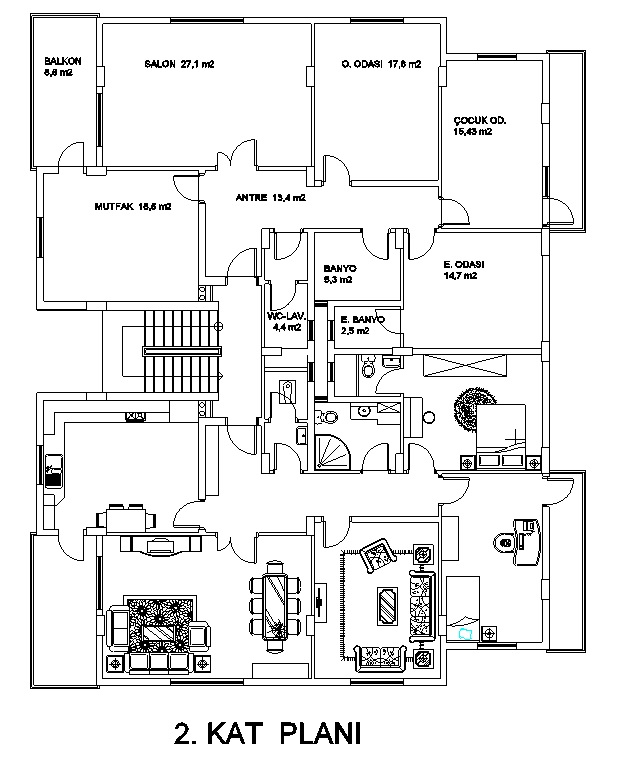
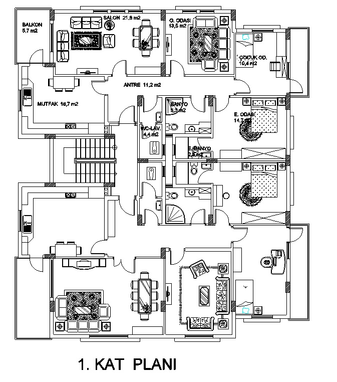
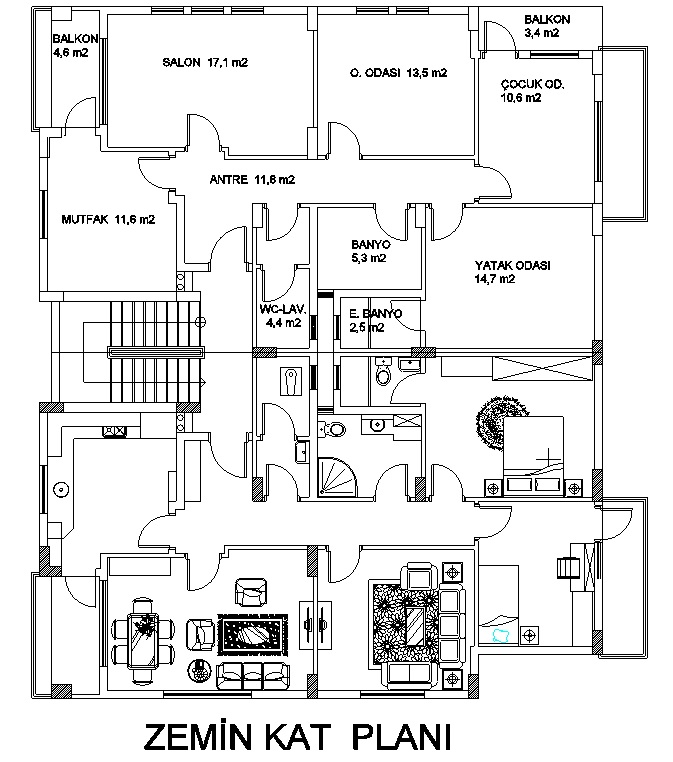
Kat Planı

Kat Planı 2

Kat Planı 3

3D Tasarım

Devam Eden Projeler
Tamamlanan Projeler
Video Galeri
Müşteri Görüşleri
Başvuru Talep
Fotoğraf Galerisi
Buhara Kurumsal
İletişim Bilgilerimiz