Buhara2 Projesi

Toplam 1 blok 14 daireden oluşan ve Polatlı`nın Şentepe Mahallesi Cemil Meriç Caddesinde yapılan Buhara 2 Apartmanı toplam 1003 metrekare alana sahiptir.

2017 yılında yapım çalışmaları başlamış, 2018 yılında teslim edilmiş, kullanıma açılmıştır. 3+1 dairelerimiz 145 metrekaredir.

Soldaki proje tanıtım videomuzdan ve alttaki proje fotoğraflarımızdan detaylıca inceleyebilir, daire özellikleri, site / bina özellikleri, kat planı ve 3D tasarım görseline sayfanın alt kısımlarına göz atarak ulaşabilirsiniz.

Otopark Spor Alanı Depreme Dayanıklı 7/24 Güvenlik Yeşil Alan Asansör Fiber İnternet Su Deposu

Proje Resimleri Tümünü Gör

YAN CEPHE DIŞ GÖRÜNÜM YATAK ODASI VESTİYER KABA İNŞAAT YAPIMI BANYO RADYE TEMEL DEMİR İŞÇİLİĞİ MANTOLAMA YAPIMI

Daire Özellikleri

1. Daireler 124,8 m² emsal alan balkonlar ile beraber 146 m² brüt alana sahiptir.
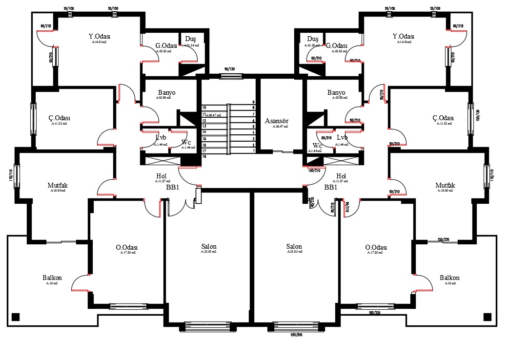
2. Her dairede antre, 3 oda, 1 salon, 2 banyo, giyinme odası, WC, lavabo, 2 balkon bulunmaktadır.
3. Her dairenin tavanlarında LED aydınlatma yapılacak şekilde çift kartonpiyer uygulaması yapılmaktadır.
4. Anahtar teslim dairelerde mutfak dolabı, çimston tezgah, vestiyer, giyinme odasına elbise dolabı, normal banyoya klozet, çamaşır makinesi tesisatı, banyo dolabı, duşakabin, yoğuşmalı kombi, tavanlarda dekorasyona göre LED ve spot aydınlatmalar yapılacaktır.
5. Büyük balkonlarda kalorifer tesisatı ve TV anten girişi konulacaktır.
6. Her odaya mobilya yerleşim ve hareket alanları dikkate alınarak yeterli sayıda priz konulacaktır.
7. Her odaya, mutfağa TV anten girişi konulacaktır.
8. Ebeveyn banyosuna duş ve lavabo konulacaktır.
9. Mutfak dolaplarının kapaklarında belirlenen renkler arasında tercih hakkı verilecektir.
10. Antrede sensörlü yerden gece aydınlatması yapılacaktır.
11. Parke yapımında parke altlarına 5 mm strafor kullanılacaktır.
12. Balkona açılmayan odalarda çift açılımlı pencere kanadı kullanılacaktır.

Bina Özellikleri

1. Bina Bayındırlık ve İskân Bakanlığının belirlemiş olduğu ve Polatlı Belediyesi ve Çevre ve Şehircilik Bakanlığının verdiği mimari proje ve cepheye uygun olarak yapılacaktır.
2. Temel radye temel şeklinde yapılacaktır.
3. Bina ara katlarında 30 dansite yoğunluğunda strafor kullanılacaktır.
4. Aynı katta bulunan iki daire arasındaki ortak duvar çift duvar şeklinde ve araya yalıtım malzemesi konularak yapılacaktır.
5. Dış cephede kaba sıva üzerine 5 cm kalınlığında karbonlu mantolama malzemesi kullanılacaktır.
6. Binada renkli pimapen kullanılacaktır.
7. Binaya ait çanak anten takılacak ve her daireye iki adet kablo çekilecektir.
8. 6 adet güvenlik kamerası ve kontrol için güvenlik odası bulunacaktır.
9. Bodrum katta 100 m² büyüklüğünde binaya ait depo, enerji odası, sığınak, su kesintisine karşılık yeterli büyüklükte su deposu ve hidrafor bulunacaktır.
10. Yeterli büyüklükte otopark yapılacaktır.
11. Bina girişi çift giriş şeklinde olacak ve giriş kartlı sistem şeklinde yapılacaktır.
12. Binada 10 kişilik asansör yapılacak ve engelli olan kişilerin başkasına ihtiyaç duymadan rahatça evine girip çıkması sağlanacaktır.

Kat Planı

Kat Planı 2

3D Tasarım

Devam Eden Projeler
Tamamlanan Projeler
Video Galeri
Müşteri Görüşleri
Başvuru Talep
Fotoğraf Galerisi
Buhara Kurumsal
İletişim Bilgilerimiz