Buhara Projesi

Tanıtım Videosu Yok

Toplam 1 blok 10 daireden oluşan ve Polatlı`nın Şehitlik Mahallesi Ulubatlı Hasan Caddesinde yapılan Buhara Apartmanı toplam 1900 metrekare alana sahiptir.

2010 yılında yapım çalışmaları başlamış, 2012 tarihinde teslim edilmiş, kullanıma açılmıştır. 4+1 dairelerimiz 155 metrekaredir.

Soldaki proje tanıtım videomuzdan ve alttaki proje fotoğraflarımızdan detaylıca inceleyebilir, daire özellikleri, site / bina özellikleri, kat planı ve 3D tasarım görseline sayfanın alt kısımlarına göz atarak ulaşabilirsiniz.

Otopark Oyun / Spor Alanı Depreme Dayanıklı 7/24 Güvenlik Yeşil Alan Asansör Fiber İnternet

Proje Resimleri Tümünü Gör

MUTFAK ASMOLEN TAVAN ASMA TAVAN TABLA BETON DÖKÜMÜ MUTFAK RADYE TEMEL DEMİR İŞÇİLİĞİ SALON ASMOLEN TAVAN

Daire Özellikleri

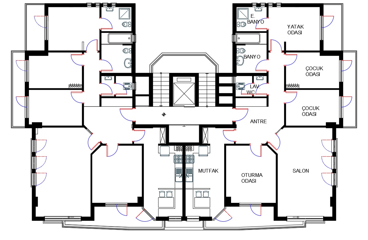
1. Daireler 152,3 m² brüt alana sahip 8 daire, 212,3 m² brüt alana sahip iki daire olmak üzere toplam 10 daire şeklinde yapıldı.
2. Her dairede antre, 4 oda, 1 salon, 2 banyo, wc, lavabo, 3 balkon bulunmaktadır.
3. Her dairenin tavanlarında led aydınlatma yapılacak şekilde alçıpan uygulaması yapıldı.
4. Anahtar teslim dairelerde mutfak dolabı, granit tezgah, vestiyer, normal banyoya klozet, çamaşır makinesi tesisatı, banyo dolabı, duşakabin, tavanlarda dekorasyona göre led ve spot aydınlatmalar yapıldı.
5. Her odaya mobilya yerleşim ve hareket alanları dikkate alınarak yeterli sayıda priz konuldu.
6. Her odaya, mutfağa tv anten girişi konuldu.
7. Ebeveyn banyosuna duşakabin ve lavabo ve klozet konuldu.
8. Mutfak dolaplarının kapaklarında belirlenen renkler arasında tercih hakkı verildi.
9. Antrede çift renkli şerit led kullanıldı.
10. Parke yapımında parke altlarına 5 mm strafor kullanıldı.
11. Her odada ve salonda çift açılımlı pencere kanadı kullanıldı.
12. Her dairede görüntülü diyafon kullanıldı.
13. Mutfak balkonlarına cam balkon sistemi yapıldı.

Bina Özellikleri

1. Bina Bayındırlık ve İskân Bakanlığının belirlemiş olduğu ve Polatlı Belediyesi ve Çevre ve Şehircilik Bakanlığının verdiği mimari proje ve cepheye uygun olarak yapıldı.
2. Temel radye temel şeklinde yapıldı.
3. Bina ara katları asmolen tavan şeklinde yapıldı.
4. Aynı katta bulunan iki daire arasındaki ortak duvar çift duvar şeklinde ve araya yalıtım malzemesi konularak yapıldı.
5. Dış cephede kaba sıva üzerine 5 cm kalınlığında karbonlu mantolama malzemesi kullanıldı.
6. Binada renkli pimapen kullanıldı.
7. Binaya ait çanak anten takılarak ve her daireye iki adet kablo çekildi.
8. 8 adet güvenlik kamerası ve kontrol için güvenlik odası yapıldı.
9. Bodrum katta 100 m² büyüklüğünde binaya ait depo, enerji odası, sığınak, su kesintisine karşılık yeterli büyüklükte su deposu ve hidrofor sistemi kuruldu.
10. Bodrum katta her daireye özel kiler sistemi yapıldı.
11. Yeterli büyüklükte otopark yapıldı.
12. Bina girişi çift giriş şeklinde olacak ve giriş kartlı sistem olacak şekilde yapıldı.
13. Binada 6 kişilik asansör yapıldı ve engelli olan kişilerin başkasına ihtiyaç duymadan rahatça evine girip çıkması sağlandı.
14. Bahçede çocuklar için oyun parkı yapıldı.
15. Bahçede yetişkinler için fitness aletleri konuldu.
16. Bahçede ayrıca iki adet kamelya, süs havuzu ve yeşil alan yapıldı.
17. Bahçe kapısı kumandalı otomatik şekilde yapıldı.
18. Yeşil alanlar için otomatik sulama sistemi kuruldu.
19. Bina ve bahçe için yeterli aydınlatma sağlandı.

Kat Planı

3D Tasarım

Devam Eden Projeler
Tamamlanan Projeler
Video Galeri
Müşteri Görüşleri
Başvuru Talep
Fotoğraf Galerisi
Buhara Kurumsal
İletişim Bilgilerimiz